Sport & leisure

Verbouwing Koning Willem II stadion

Tilburg

Projectleider (indien van toepassing)

Stephan van den Dungen

Opdrachtgever

Willem 2, Tilburg

Bouwmanagement

Buster Bouwcontrol, Tilburg

Adviseur en PVE

The Stadium Consultancy BV, Naarden

Adviseur Bouwfysica en veiligheid

Klictet Advies BV, Oisterwijk

Aannemer

Heerkens Van Bavel, Tilburg

Constructeur

Ingenieurs / Adviesbureau Markslag Beljaars BV, Tilburg

Realisatie

2023 – 2024

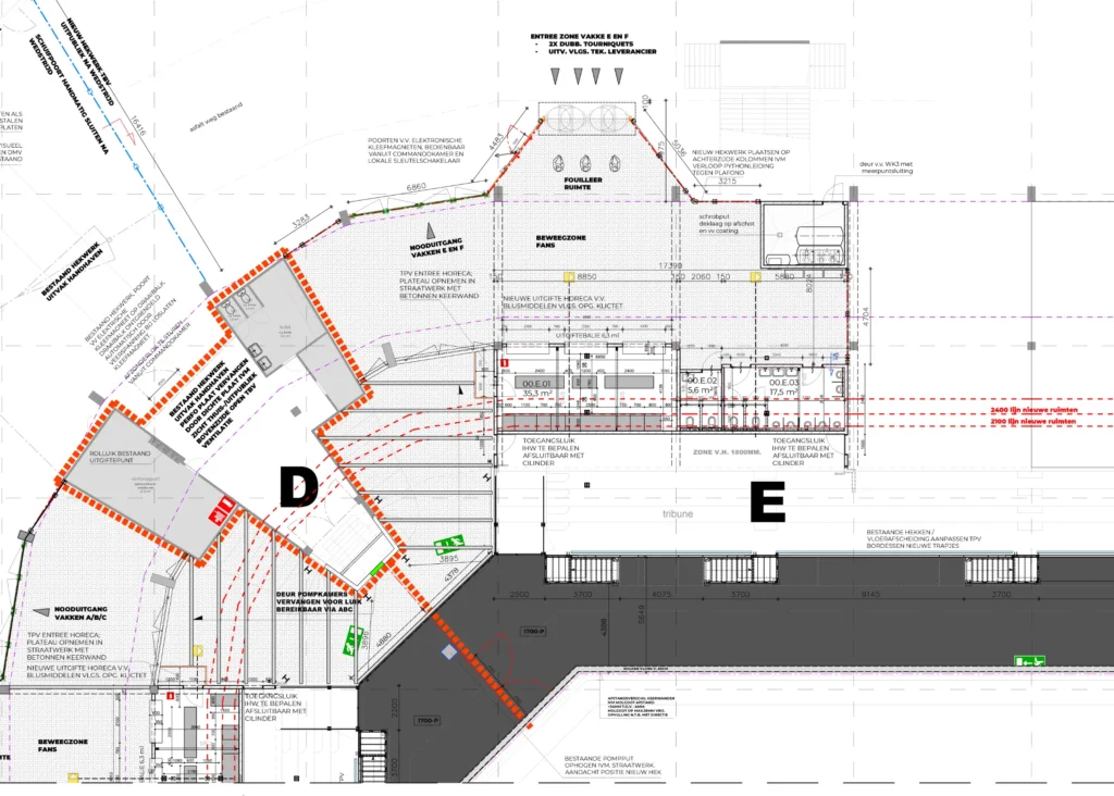
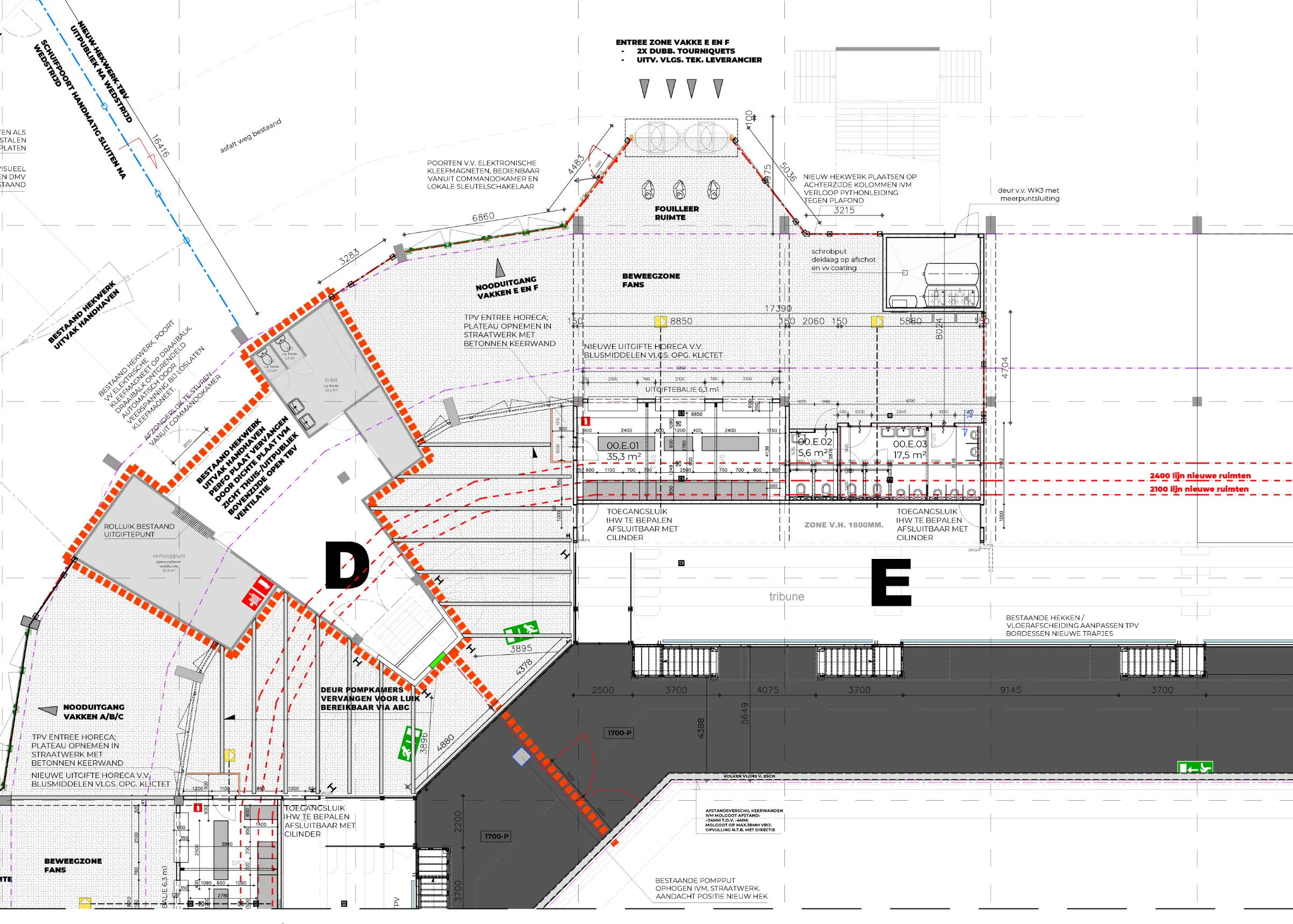
In 2022 kwam het Koning Willem II Stadion in Tilburg in eigendom van de voetbalclub. De club had de sterke wens zelf eigenaar te zijn van het stadion. Na uitvoerig onderzoek was de verkoop en overdracht van het stadion van Gemeente Tilburg naar Willem II een feit. Een belangrijk aspect dat gepaard ging met de overdracht van het stadion was een kwaliteitsverbetering op meerdere fronten, te weten; het verbeteren van de veiligheid in het stadion, de voetbalbeleving en de voorzieningen voor supporters. In een ontwerp- en bouwteam is een plan uitgewerkt dat het stadion verdeelt in sectoren. Hiermee gepaard ging een nieuw toegangscontrole systeem, uitbreiding van voorzieningen en horeca uitgiftepunten. Voor een belangrijk deel zijn deze gerealiseerd in de ruimten onder de bestaande tribunes. Het bezoekersvak werd aangepast om de veiligheid in het stadion te vergroten en de controlekamer is uitgebreid. Door de sectorscheiding is de routing in het stadion verbeterd. Grachten langs het veld zijn gedempt. Nieuwe verkeersroutes die hierdoor ontstaan dragen bij aan een betere veld- en voetbalbeleving.