-
Grote afbeelding bekijken
-
Grote afbeelding bekijken
-
Grote afbeelding bekijken
-
Grote afbeelding bekijken
-
Grote afbeelding bekijken
Andreashof Hilvarenbeek
Protestantse Kerktuin Vrijthof Hilvarenbeek
Projectarchitect
Frank Doomen
Assistent ontwerper
Margarida Araújo
Opdrachtgever
Protestantse Kerk Hilvarenbeek e.o.
Aannemer
Aannemersbedrijf J.A. van Gisbergen BV, Hooge Mierde
Landschapsarchitect
Studio Buitenkompas, Hilvarenbeek
Realisatie
2026
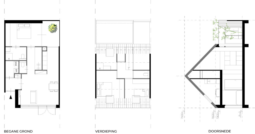
Het bestuur van de Protestantse Kerk in Hilvarenbeek (Andreaskerk, Vrijthof 22) oriënteert sinds enkele jaren op de mogelijkheden om het kerkgebouw en bijbehorende gronden in te zetten om de instandhouding van de kerk naar de toekomst te borgen. Woningen voor een specifieke doelgroep zijn daarvoor een wenselijke gedachte. Zorg en welzijn zijn uitgangspunten geweest in het ontwerp. Geïnspireerd op een begijnhof is een ontwerp gemaakt voor zeven toekomstbestendige koopwoningen. De ondergrond blijft eigendom van de kerk waardoor een beheersbaar binnengebied ontstaat. Het concept van een Begijnhof sluit aan bij de religieuze geschiedenis van de plek. Zorgen voor elkaar krijgt hier opnieuw betekenis. Voorzieningen in de nabijheid maakt hier wonen bijzonder en aangenaam. De hoge mate van gemeenschappelijkheid stimuleert sociale binding en werkt zorgen voor elkaar in de hand.
Aansluitend bij de bestaande bebouwing worden de nieuwe woningen ontworpen in een ingetogen, eigentijdse architectuur en zijn ze geschikt voor toekomstbestendig wonen. Aanwezige oude tuinmuren worden opgenomen in het ontwerp. Gebouwen zijn terughoudend. De gemeenschappelijke tuin staat centraal en fungeert als semi openbare ruimte als een aangename ontmoetingsplek.