-
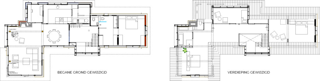
Grote afbeelding bekijken
-
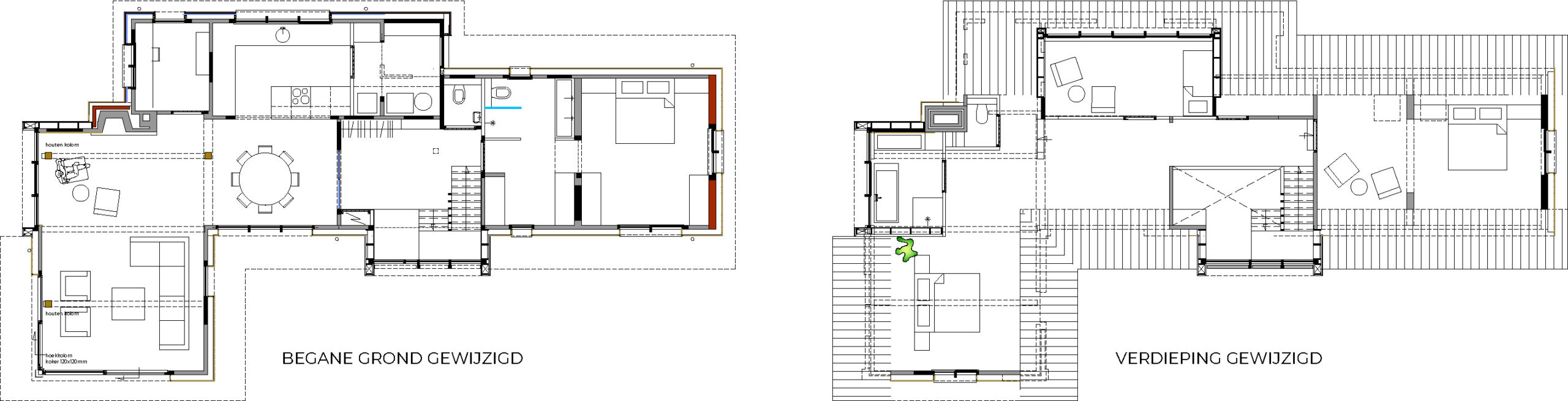
Grote afbeelding bekijken
-
Grote afbeelding bekijken
-
Grote afbeelding bekijken
-
Grote afbeelding bekijken
-
Grote afbeelding bekijken
-
Grote afbeelding bekijken
Renovatie en restyling Villa Nooitgedacht
Oisterwijk
Projectarchitect
Frank Doomen
Interieurarchitect
Jan van der Spank Vormgeving & Styling
Opdrachtgever
Particulier
Aannemer
Mallens Bouw, Berkel-Enschot
Constructeur
Constructief Adviesburo van Slobbe, Udenhout
Realisatie
2025 – 2026
De vrijstaande villa aan de Oirschotsebaan 2 te Oisterwijk is prachtig gelegen in de Oisterwijkse bossen. Het royale landgoed draagt de naam “Nooitgedacht”. Aan de Oirschotsedijk staat de naam aangeduid op de metselwerk penanten en het ontwerp dateert uit de jaren ’60 van de vorige eeuw. De oorspronkelijke villa is te typeren als een bescheiden landhuis. Bijzondere stijlkenmerken met houten details, gevelbekledingen, een gemetseld rookkanaal, houten raamkaders en een spel van samengestelde daken bepalen het architectonisch beeld. Het kleurenpalet van witte gevels, donkere kozijndetails en daken van grijze keramische pannen karakteriseren de woning en geven de villa een “eigen plek” in het bos. De ambitie van de opdrachtgevers, om de prettige “look & feel” van de woning als uitgangspunt te nemen voor het ontwerp, is vertaald in het plan. De opgave bestaat uit het restylen en verbouwen van de hoofdbouw en het realiseren van een mantelzorgwoning op het perceel. In het ontwerp is de begane grond van de bestaande woning verlaagd om hoogte te winnen. In een geheel nieuwe gevelbekleding van mineraal stucwerk en hout is met nieuwe gevelopeningen op een eigentijdse manier aangesloten bij de oorspronkelijke uitstraling van de woning.