-
Grote afbeelding bekijken
-
Grote afbeelding bekijken
-
Grote afbeelding bekijken
-
Grote afbeelding bekijken
-
Grote afbeelding bekijken
Herbestemming Beerseweg 32
Diessen
Concept & Research
ing. Joep Vugts
Opdrachtgever
Hama Industry, Hilvarenbeek
RO-Adviseur
Van Doormaal Advies BV, Haghorst
Realisatie
Prognose 2026
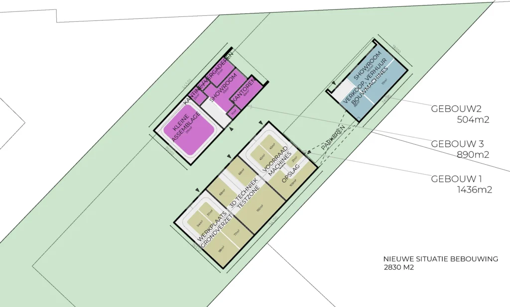
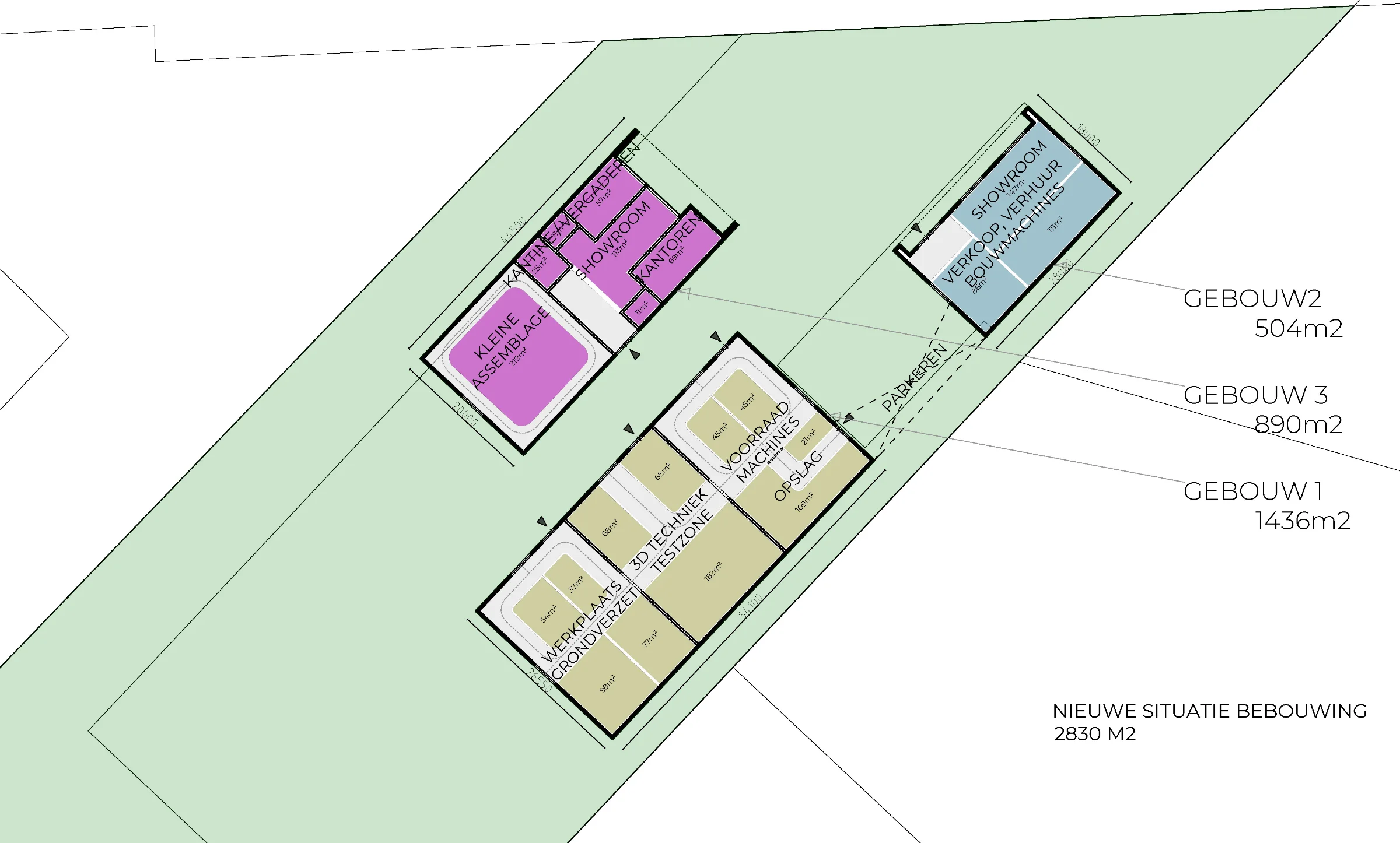
Van intensieve veehouderij tot innovatieve plattelandscampus
Het plan was aanvankelijk om het vleesvarkensbedrijf uit te breiden naast de activiteiten van nevenbedrijf Hama Industry. Door ambitie en innovatieve ontwikkeling ontstond de visie om de locatie volledig te gaan bestemmen voor Hama Industry, specialist op gebied van hoogprecisie grondverwerking. Vergaande technische ontwikkeling en automatisering in deze sector vraagt, naast de machines zelf, om een omgeving waarin opgeleid, getraind en geoefend kan worden. Het plangebied van 9500 m² wordt getransformeerd tot een regionaal betekenisvolle innovatiehub waarin technologie, landschap en duurzame energieconcepten samenkomen. Gebouwen op de campus voor R&D, assemblage, kantoren, werkplaats, showroom, machineopslag, onderwijs- en trainingsruimten, vergaderfaciliteiten en innovatie-labs omsluiten een buitenterrein met demonstratie- en oefenzones, waterbergingen met natuurvriendelijke oevers en een publieke pleisterplaats voor passanten.