-
Grote afbeelding bekijken
-
Grote afbeelding bekijken
-
Grote afbeelding bekijken
-
Grote afbeelding bekijken
-
Grote afbeelding bekijken
-
Grote afbeelding bekijken
-
Grote afbeelding bekijken
-
Grote afbeelding bekijken
25 CPO starters-koopwoningen
De Welder 2, Haghorst
Projectarchitect
Frank Doomen
Projectleider
Stephan van den Dungen
CPO Begeleider
Brecht Gerritse, Helvoirt
Stedenbouwkundig ontwerp
Nieuw Blauw, Zaltbommel
Opdrachtgever
CPO Vereniging De Welder
Aannemer
Aannemersbedrijf J.A. Van Gisbergen BV, Hooge Mierde
Constructeur
Braamhorst Constructief Adviesbureau, Boxtel
Realisatie
2026
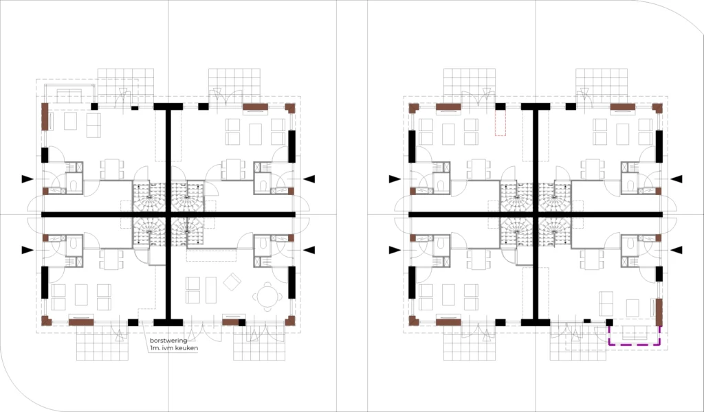
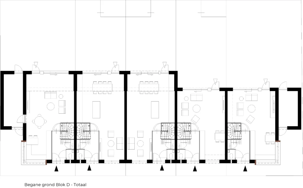
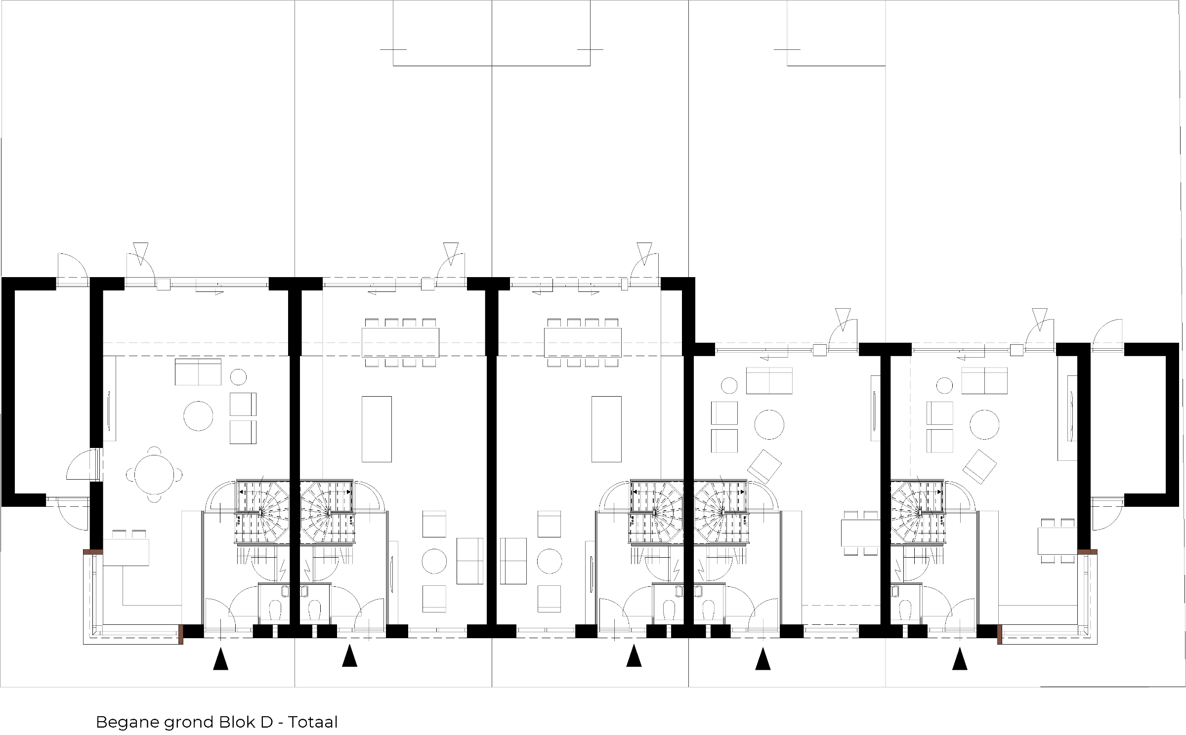
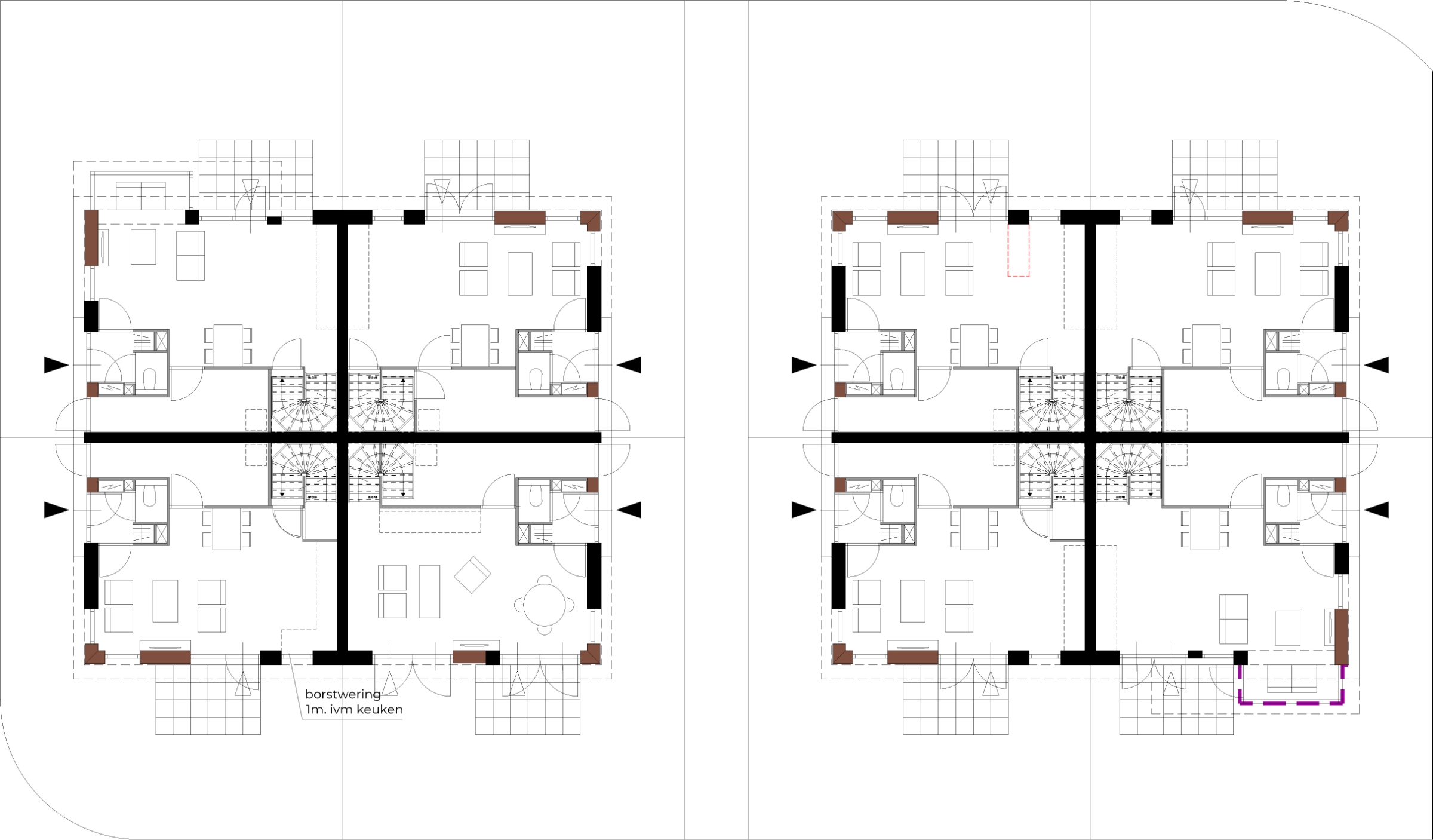
In 2024 heeft CPO Vereniging De Welder 2 Haghorst bij gemeente Hilvarenbeek het licht op groen gekregen voor de realisatie van 25 starterswoningen in collectief particulier opdrachtgeverschap. Gemeente Hilvarenbeek draagt hierdoor bij aan het vergroten van de woningvoorraad binnen de gemeentegrenzen. Het stedenbouwkundig ontwerp van Nieuw Blauw en de verkaveling van de woningen ademen een landelijke sfeer uit. Georiënteerd op groene ruimten zijn verschillende woningblokken gesitueerd met elk eigen kenmerken en kavelmaten. Hierdoor ontstaat op een ongedwongen manier variëteit in woningtypes en uitstraling. Binnen het collectieve geheel is samenhang gevonden tussen verschillen mét ruimte voor persoonlijke keuzes en voorkeuren. In de architectonische uitwerking zijn detailleringen op elkaar afgestemd. Verschillende koperswensen hebben geleid tot een diversiteit in kleuren metselwerk en kozijnen. De vier blokken bestaan uit woningtypes met verschillende beukmaten en daardoor variërende prijsstellingen. Dit is belangrijk geweest in de kavelkeuzes van de deelnemers. Overgangen tussen verschillende woningtypes in de vier blokken zijn zorgvuldig afgestemd. Een speciaal woningtype binnen het plan zijn de rug-aan-rug woningen in Blok A. Deze woningen staan in clusters van vier vrij op grote percelen waardoor ze aansluiten bij het agrarische karakter van het dorp, verwijzend naar boerenschuren.