-
Grote afbeelding bekijken
-
Grote afbeelding bekijken
-
Grote afbeelding bekijken
-
Grote afbeelding bekijken
-
Grote afbeelding bekijken
-
Grote afbeelding bekijken
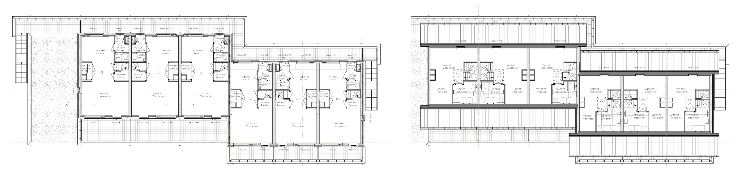
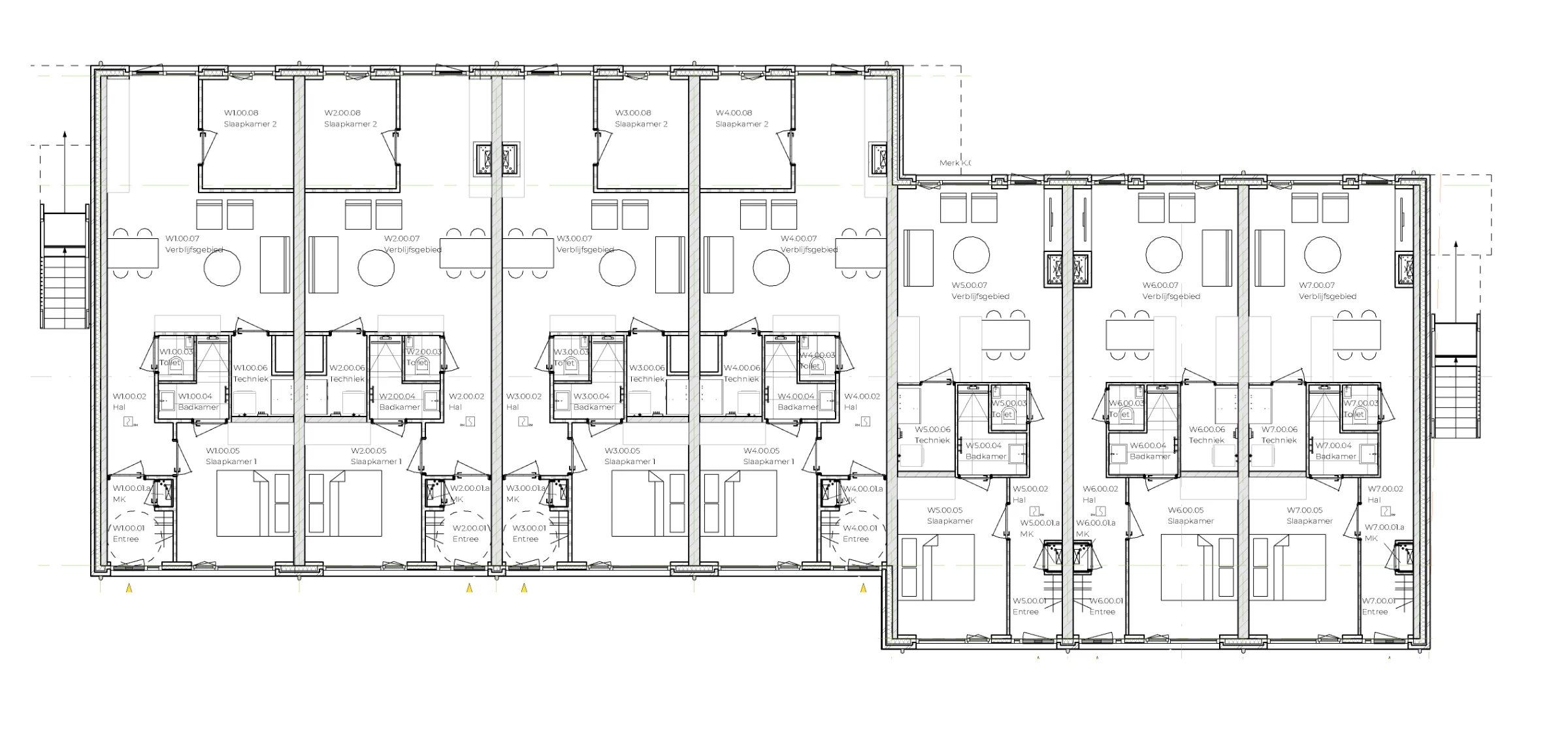
13 Woningen
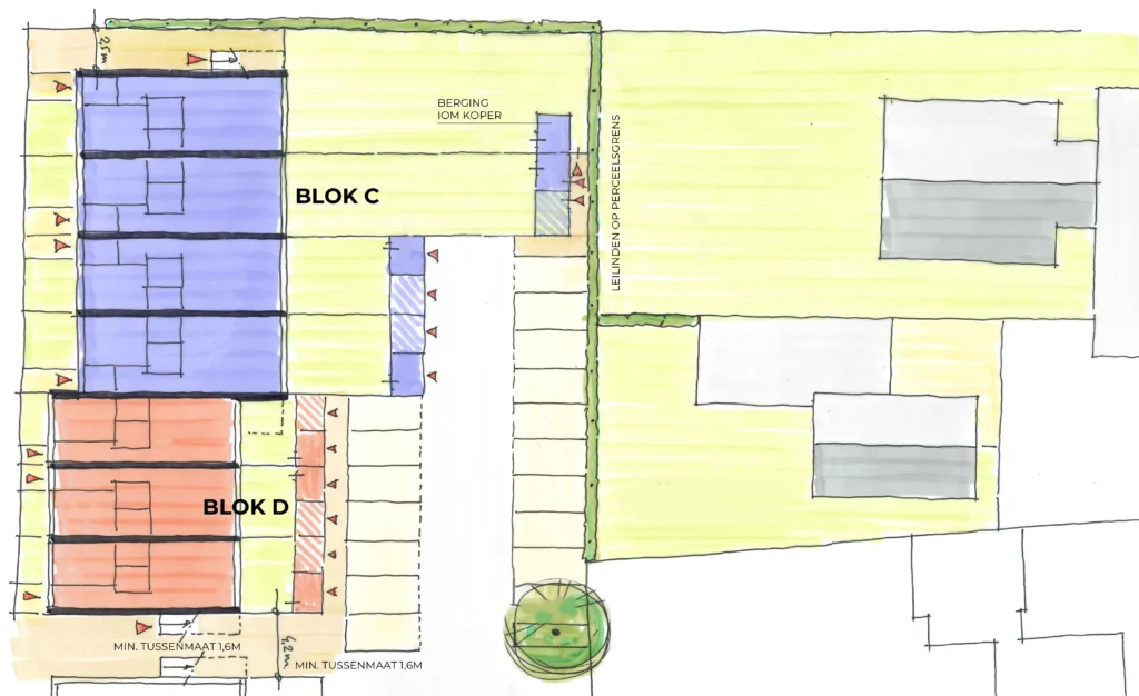
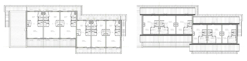
Hilvarenbeek Noord - Fase 2
Projectarchitect
Frank Doomen
Projectleider
Stephan van den Dungen
Opdrachtgever
Particulier
Aannemer
Bouwbedrijf Edward Ansems BV, Esbeek
Constructeur
Adviesbureau CK2 BV, Bladel
Realisatie
2026
In navolging op de 20 nieuwbouw woningen aan de Bastiaan in Hilvarenbeek Noord is na het verdwijnen van een cafetaria met overdekte speeltuin ruimte vrij gekomen om het wijkje aan de Roodloop in Hilvarenbeek af te ronden. De afronding bestaat uit een nieuwbouwplan van 13 woningen in 4 verschillende types. In twee verschillende beukmaten zijn onder- en bovenwoningen ontworpen om maximaal te kunnen inspelen op de gewenste woningbouwprogrammering en prijsklassen. De beƫindiging van het plan aan de Noordelijke zijde bestaat uit een ingekorte bovenlaag om privacy te waarborgen aan belendende percelen. De set-back die hierdoor ontstaat zorgt voor een fraaie overgang van de rijwoningen aan de Bastiaan naar de vrijstaande woonhuizen aan de Biedonk. Het project is qua architectuurbeeld afgestemd op de 20 woningen uit de eerste fase. Afwijkende beukmaten, variatie in gevelopeningen en een verspringende gevellijn, in combinatie met een eigen kleurenpallet, geven dit plandeel een eigen uitstraling.